
Clique nas fotos para ampliar
Nem sempre é disponibilizado pelas construtoras todas as projeções de como será entregue as áreas de lazer, portanto o que conta são os itens descritos acima.
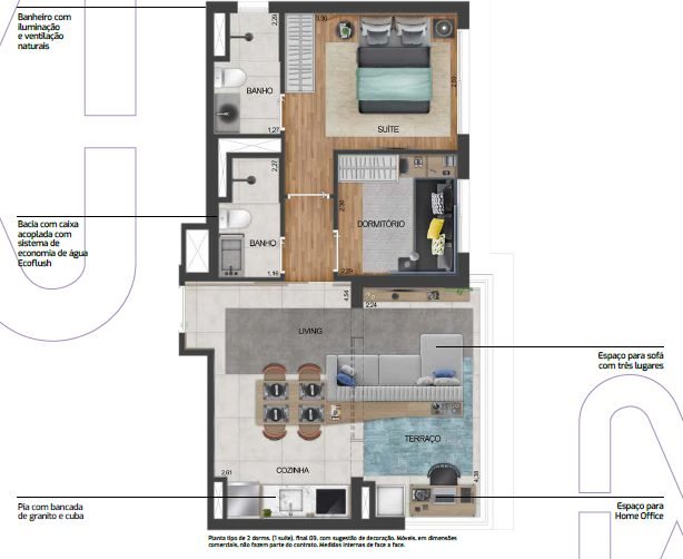
Plantas Comuns ou “Tipos” são as que mais se repetem nos andares, diferente dos gardens, penthouses ou coberturas.
Gardens são os apartamentos localizados sempre no térreo ou no primeiro andar onde começam os apartamentos. Geralmente possuem a mesma metragem dos apartamentos “tipo”, mas a diferença é que possuem também uma área externa descoberta, como se fosse um jardim, por isso o nome “garden”.
Mostra como está distribuído o lazer no condomínio.
📍 Sobre o bairro: Brooklin
O Brooklin é um dos bairros mais valorizados da zona sul de São Paulo, conhecido por sua infraestrutura moderna, forte presença corporativa e excelente qualidade de vida. A região combina áreas residenciais com importantes centros empresariais, sendo ideal tanto para moradia quanto para investimento.
🚇 Mobilidade e localização
O Brooklin se destaca pela excelente mobilidade. O bairro é atendido por estações como Estação Brooklin, Estação Campo Belo e Estação Berrini, facilitando o acesso a diversas regiões da cidade.
Além disso, possui fácil acesso a importantes vias como a Avenida Santo Amaro, Avenida Jornalista Roberto Marinho e Marginal Pinheiros, conectando rapidamente a polos como a Berrini e a Vila Olímpia.
🛍️ Comércio e serviços
A região conta com uma infraestrutura completa de comércio e serviços, com supermercados, farmácias, academias, escolas e uma ampla variedade de restaurantes e cafés.
O bairro também está próximo de importantes centros comerciais, como o Morumbi Shopping e o Shopping Market Place, ampliando as opções de lazer e conveniência.
🌳 Lazer e qualidade de vida
O Brooklin oferece excelente qualidade de vida, com ruas arborizadas, boas opções de lazer e fácil acesso a áreas verdes.
A região está próxima ao Parque do Povo e ao Parque Ibirapuera, além de contar com diversas opções de entretenimento e gastronomia.
🎯 Perfil do bairro
O Brooklin é ideal para profissionais, casais e famílias que buscam praticidade, mobilidade e proximidade com centros empresariais.
Também é uma das regiões mais procuradas por investidores, com alta demanda por locação e forte valorização, especialmente em imóveis modernos e bem localizados.
Fale com apenas um corretor e tenha acesso a todo o mercado de uma forma direta, clara e objetiva