Paulo Mauro

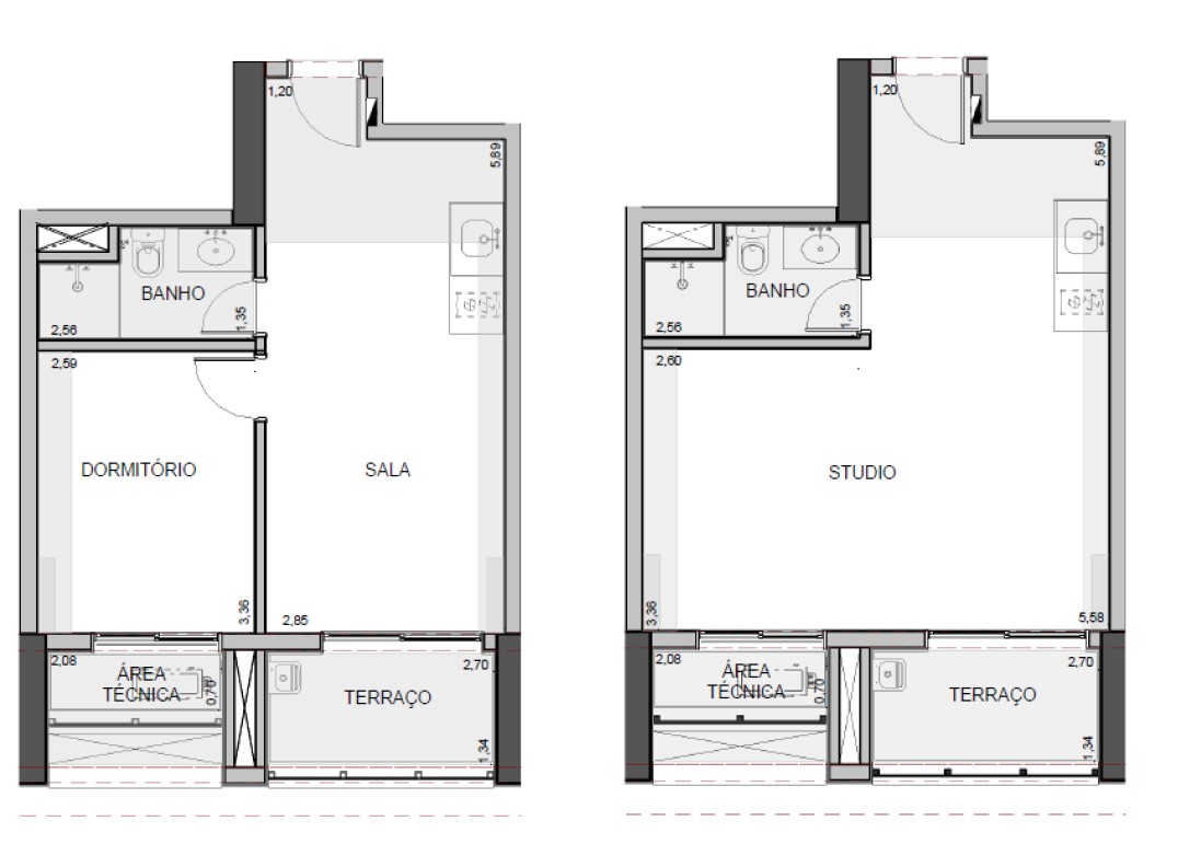
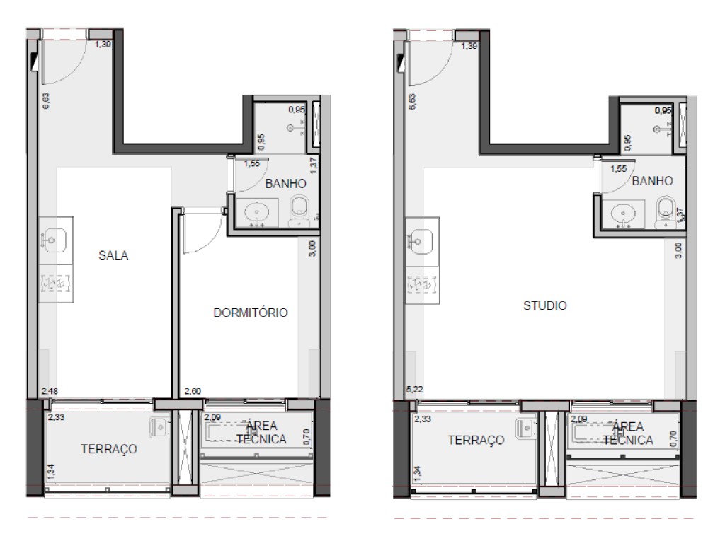
Legí (Studios)

Lazer e Áreas Comuns

Clique nas fotos para ampliar

Academia
Bicicletário
Coliving
Coworking
Espaço Delivery
Lavanderia

Tour Virtual

Localização

Empreendimentos Relacionados

Entre em Contato Conosco!

Fale com apenas um corretor e tenha acesso a todo o mercado de uma forma direta, clara e objetiva