Gamaro

Jardim Lobato

Lazer e Áreas Comuns

Clique nas fotos para ampliar

Prainha (bar de apoio à piscina)
Piscina
Brinquedoteca
Playground
Lounge gourmet
Lavanderia coletiva
Terraço de Jogos
Academia
Espaço Zen
Sala de Massagem
Sauna
Cobertura com jardim e bar

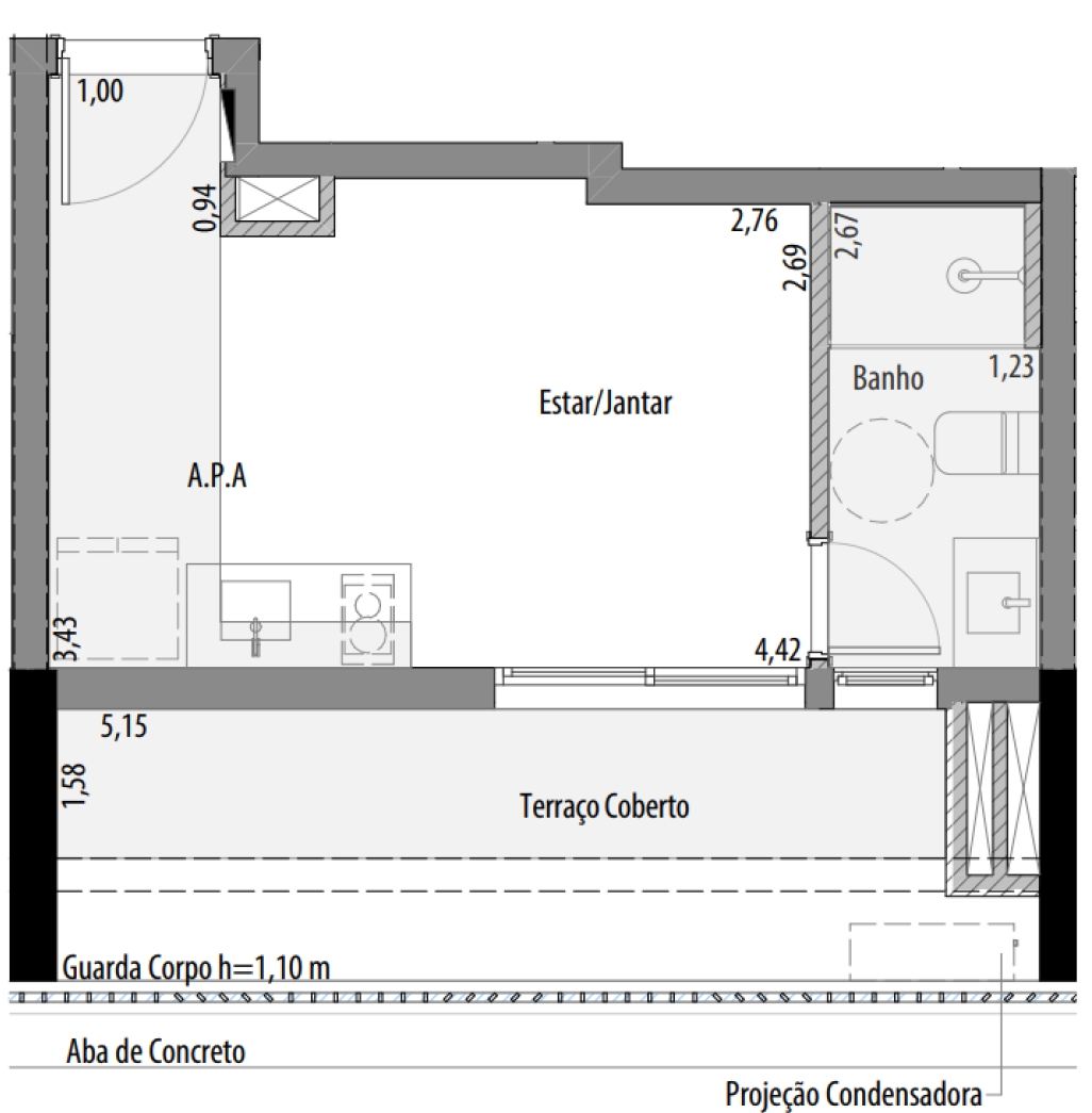
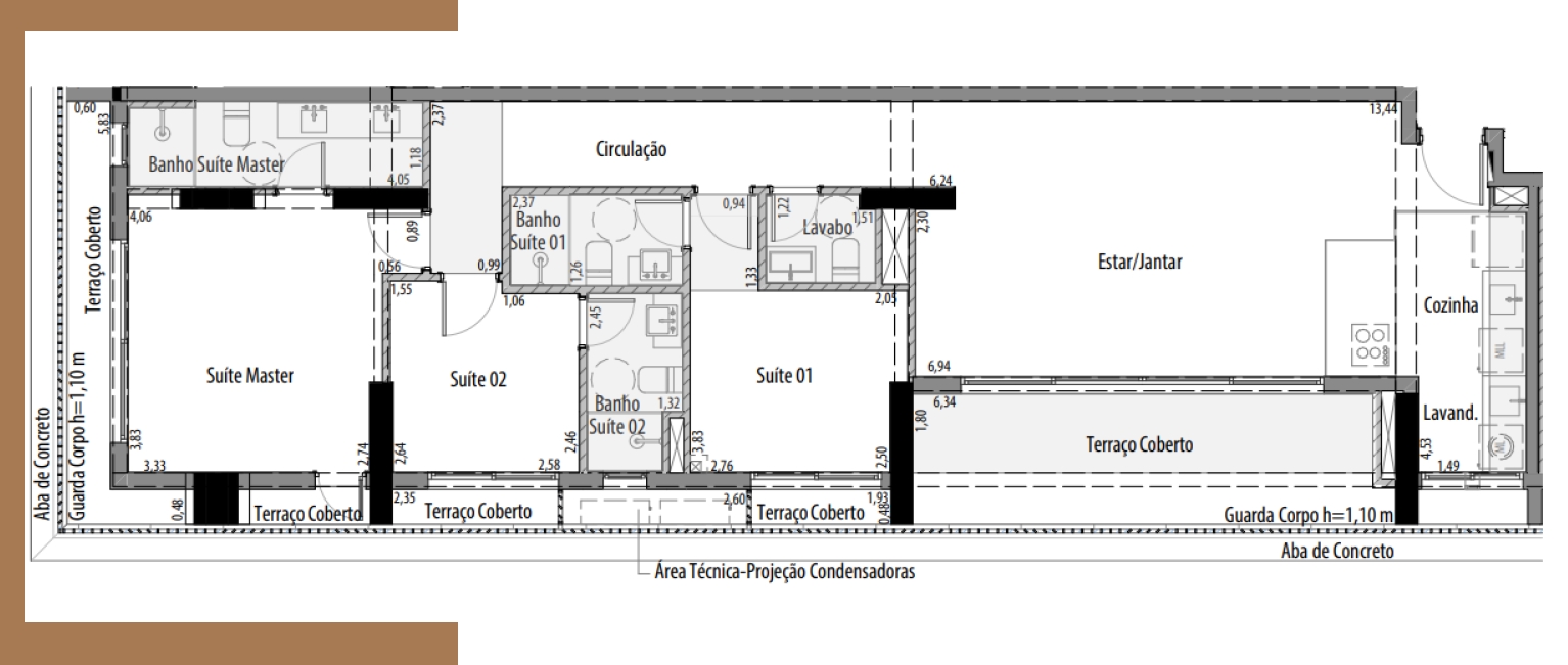
Nem sempre é disponibilizado pelas construtoras todas as projeções de como será entregue as áreas de lazer, portanto o que conta são os itens descritos acima.

Tour Virtual

Localização

Empreendimentos Relacionados

Entre em Contato Conosco!

Fale com apenas um corretor e tenha acesso a todo o mercado de uma forma direta, clara e objetiva