
Clique nas fotos para ampliar
Nem sempre é disponibilizado pelas construtoras todas as projeções de como será entregue as áreas de lazer, portanto o que conta são os itens descritos acima.
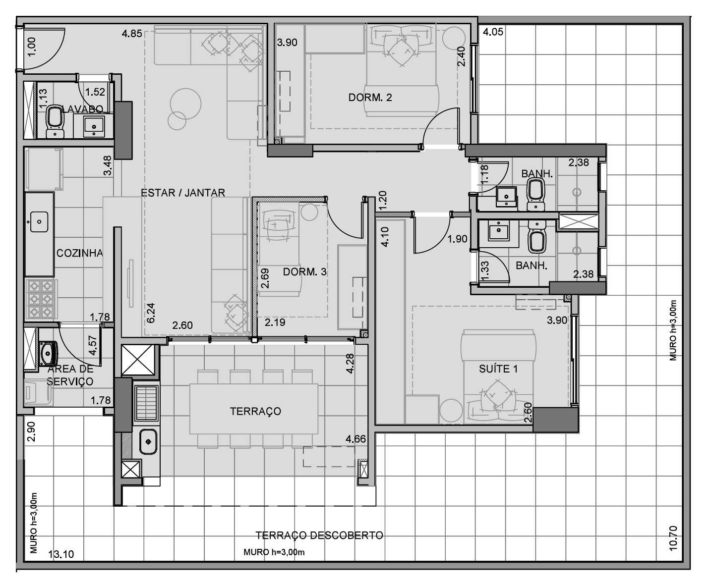
Plantas Comuns ou “Tipos” são as que mais se repetem nos andares, diferente dos gardens, penthouses ou coberturas.
Gardens são os apartamentos localizados sempre no térreo ou no primeiro andar onde começam os apartamentos. Geralmente possuem a mesma metragem dos apartamentos “tipo”, mas a diferença é que possuem também uma área externa descoberta, como se fosse um jardim, por isso o nome “garden”.
Fale com apenas um corretor e tenha acesso a todo o mercado de uma forma direta, clara e objetiva