
Clique nas fotos para ampliar
Nem sempre é disponibilizado pelas construtoras todas as projeções de como será entregue as áreas de lazer, portanto o que conta são os itens descritos acima.
Plantas Comuns ou “Tipos” são as que mais se repetem nos andares, diferente dos gardens, penthouses ou coberturas.
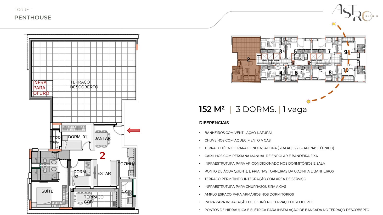
As penthouses são plantas que possuem uma área externa descoberta, mas a diferença para os gardens é que essas plantas ficam em andares altos, como por exemplo em um prédio de 20 andares ter penthouses no 10º andar.
Coberturas são os apartamentos sempre localizados no último andar dos edifícios, podendo ser horizontais, duplex ou triplex.
Mostra como está distribuído o lazer no condomínio.
📍 Sobre o bairro: Vila Mariana
A Vila Mariana é um dos bairros mais completos e valorizados da zona sul de São Paulo. Conhecida pelo equilíbrio entre infraestrutura urbana, áreas verdes e localização estratégica, a região atrai tanto moradores quanto investidores que buscam qualidade de vida com fácil acesso ao restante da cidade.
🚇 Mobilidade e localização
Um dos grandes destaques da Vila Mariana é a mobilidade. O bairro é atendido por importantes estações como Estação Vila Mariana e Estação Ana Rosa, que conectam as linhas Azul e Verde do metrô, facilitando o deslocamento para diversas regiões da cidade.
Além disso, o acesso rápido a vias importantes como a Avenida Paulista e a Rua Vergueiro torna o dia a dia muito mais prático.
🛍️ Comércio e serviços
A região conta com uma infraestrutura completa de comércio e serviços. Supermercados, farmácias, academias, escolas e hospitais estão distribuídos por todo o bairro, garantindo conveniência no dia a dia.
A proximidade com a Avenida Paulista amplia ainda mais as opções de lazer, gastronomia e serviços.
🌳 Lazer e qualidade de vida
Para quem valoriza áreas verdes e cultura, a Vila Mariana é um destaque. O bairro abriga o tradicional Parque Ibirapuera, um dos principais cartões-postais da cidade, ideal para atividades ao ar livre, esportes e momentos de lazer.
Além disso, a região conta com centros culturais, teatros e diversas opções de entretenimento.
🎯 Perfil do bairro
A Vila Mariana é ideal para quem busca praticidade sem abrir mão de qualidade de vida. Muito procurada por jovens profissionais, famílias e estudantes, a região também se destaca como excelente opção para investimento imobiliário, devido à alta demanda e valorização constante.
Fale com apenas um corretor e tenha acesso a todo o mercado de uma forma direta, clara e objetiva